桥面水损害预防治理一体化服务商

18小时解决桥面防水问题

全国咨询热线:4009930889
在线咨询 联系电话 在线留言 官方微信
首页 > 新闻动态 > 行业资讯 > 阳台、厨房、卫生间墙阴角水平渗漏防治措施

阳台、厨房、卫生间墙阴角水平渗漏防治措施

2021.09.07
分享到:

  原因分析:

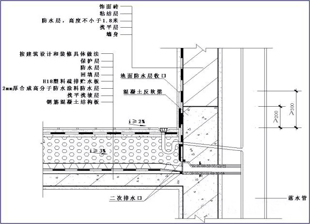
  1.阳台、厨房、卫生间墙体根部没有设置混凝土反坎梁或防水层收头高度不足。

  2.阳台、卫生间、厨房饰面砖或石材用干硬性砂浆铺贴,造成干硬性砂浆存水、窜水,直至产生横向渗漏。

  3.地面排水坡度不足,排水不畅及积水;构造层内没有设置排水地漏。

  4.选用防水材料不当,如地面防水层选用聚合物水泥基及乳液类防水涂料和防水卷材等。

  5.防水层施工与其他施工顺序不当,交叉作业导致防水层被破坏。

  6.沉箱的二次排水口堵塞。

  7.卫生间门槛、门槛石采用干硬性砂浆铺贴或密封不严

图片 3

  预防措施:

  1.卫生间楼板四周除门洞外做混凝土反坎梁,宜与现浇板一次性浇筑,其高度不小于200mm,宽度同墙厚。

  2.阳台、厨房、卫生间等凡涉水的地面应采用瓷砖胶或湿铺法施工饰面砖或石材。

  3.卫生间应增加二次排水系统,有效疏导沉箱内的积水。沉箱内部宜在防水层上铺设建筑疏排水板加快积水排放。

  4.地面宜选用符合环保要求的聚氨酯类反应型防水涂料,防水层在立面部位翻上高度比地面饰面层高300mm,淋浴间墙面防水层高度至1.8m以上,厨房墙面防水层高度不1小于1.2M。

  5.防水层施工结束后应作不少于24h闭水试验,不渗漏后方可进行下一道工序。

  6.卫生间沉箱不应使用建筑垃圾,对于填充、疏松材料的部位应使用建筑疏水板作排水处理。

  7.卫生间门槛宜采用聚合物砂浆湿铺法铺贴门槛石。

行业资讯

相关推荐

首页 电话咨询 在线联系